MN90
Functional elegance in a cozy interior
90 m²
2022
Kyiv
Location
2022
Year
90 m²
Area
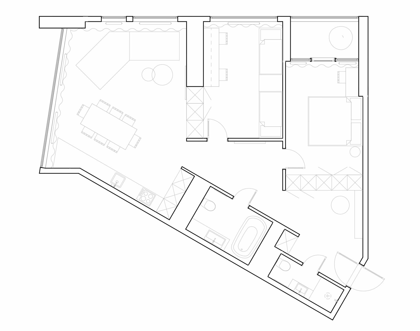
First and foremost, we decided to rearrange the layout in order to achieve the desired geometry of the rooms and create more functional zones. As a result, within 90 square meters, we were able to accommodate a spacious kitchen-living room, a master bedroom, a children's bedroom,, two bathrooms, and a laundry room.

The overall concept of the space was developed with the principles of combining textures and different materials in mind. The light-toned wall finishes allowed us to highlight elements such as stone, wood, and brass details.

Each new element serves as a visual extension of the previous one, creating a harmonious interior.
VISUALIZATION
modeling
DESIGN SUPERVISION
NK96
SV90
BB90
96 m²
2022
90 m²
2022
90 m²
2020
Modern interior in the heart of the capital
A monochromatic interior with textured details
Cozy apartment with a non-standard solution