RB48
Квартира з функціональним плануванням лише у 48 кв. м.
48 м²
2018
Київ
Локація
2018
Рік
48 м²
Площа
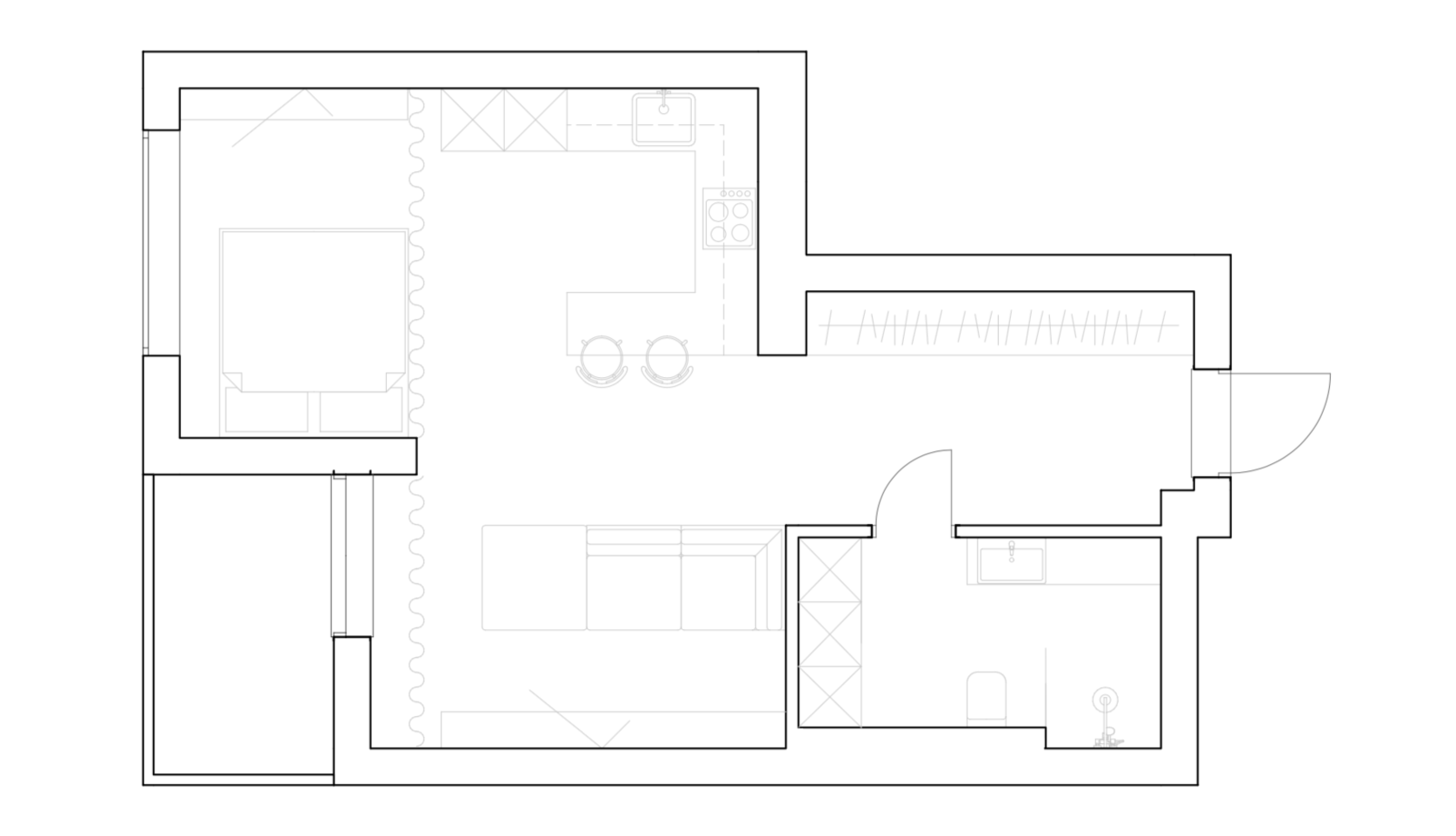
Ідея проєкту - створити практичне і комфортне житло для молодої сім'ї, яке з часом можна буде вигідно здавати в оренду. На невеликій площі в 48 кв. метрів ми розмістили повноцінну кухню, окрему зону вітальні та спальні, санвузол і численні місця для зберігання.

Нам вдалося відмовитися від початкової ідеї господарів використовувати ліжко-трансформер на користь повноцінної зони спальні. Інтер'єр виконаний в універсальній колірній гамі для залучення орендарів з максимально різними вподобаннями.

Акцентом, завдяки якому ця квартира виділяється на тлі інших, стала стіна у вітальні, оздоблена перфорованими мідними панелями. Геометрію приміщення виправлено великими дзеркалами, а щоб інтер'єром можна було насолоджуватися повною мірою, передбачено численні схеми освітлення.
Візуалізація
проектування
авторський нагляд
SL178
MN90
FS250
178 м²
2021
90 м²
2022
250 м²
2019
Апартаменти з максимально відкритим плануванням
Функціональна елегантність у затишному інтер'єрі
Будинок у лісі з сучасним інтер'єром з дерева