BB90
Затишна квартира з нестандартним рішенням
90 м²
2020
Київ
Локація
2020
Рік
90 м²
Площа
Проект створювався для замовників, які віддають перевагу натуральним матеріалам та бежевій гамі. Камінь із яскраво вираженою фактурою та натуральне дерево стали головними акцентами в оздобленні простору.

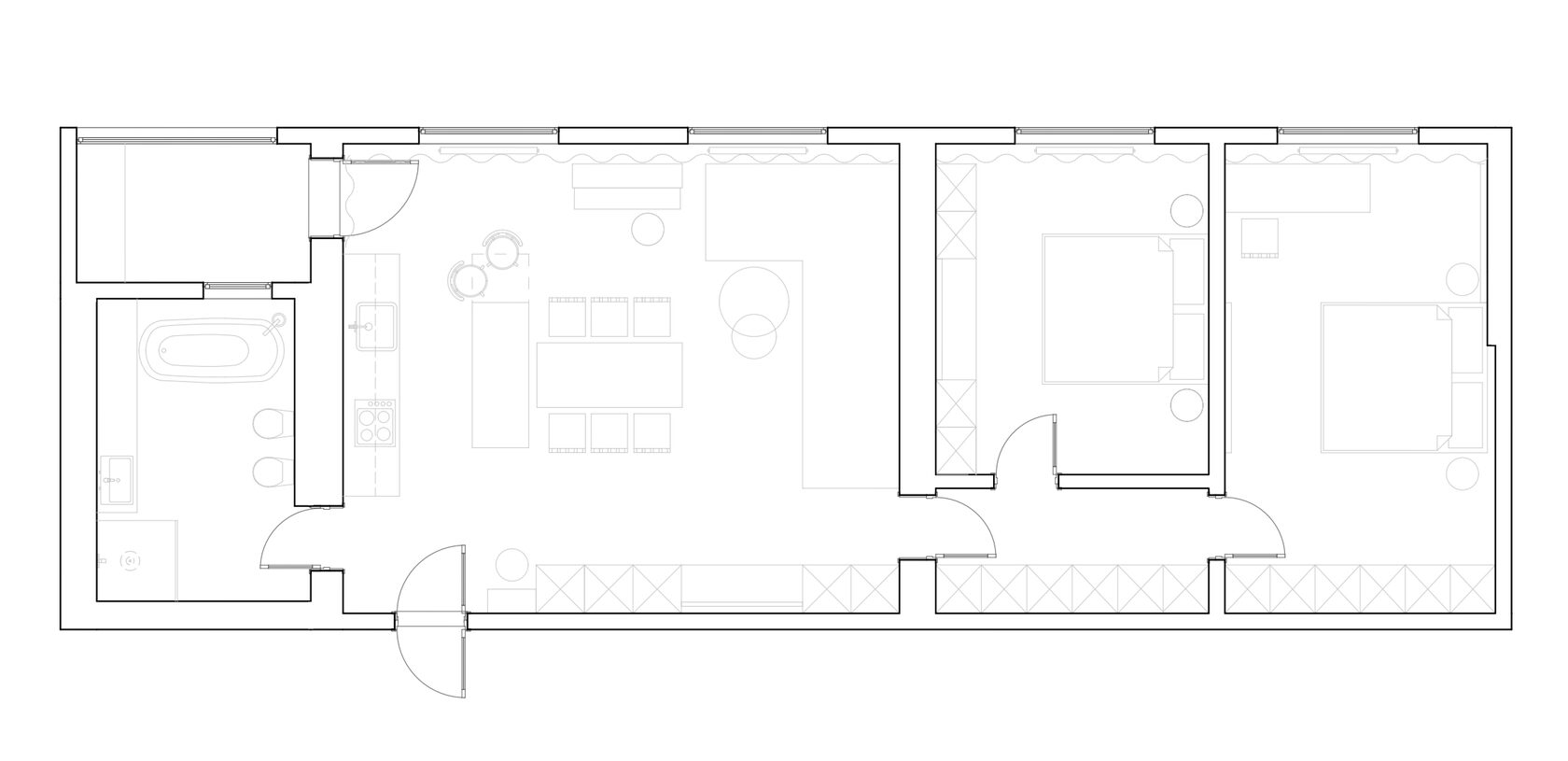
Ми зробили перепланування і об'єднали в один об'єм вітальню, кухню та передпокій. Пріоритетним завданням було максимально сховати побутову техніку та полегшити зону кухні, яка з'єднана з вітальнею. Для цього кухонні фасади розташували у двох рівнях, створивши відчуття ніші у стіні, де розташовується робоча зона. Холодильник сховали в одній із секцій шафи.

Вхід у квартиру захований за дверима прихованого монтажу. У хазяйській спальні м'які панелі біля ліжка створюють затишок і приховують стик стіни з колоною, що несе.

Також у гостьовій спальні розташували полиці для сувенірів, які привезли з численних подорожей. У невеликому санвузлі вдалося вмістити вподобану господині окрему ванну, душову кабіну, унітаз, біде і умивальник з великою стільницею.
Візуалізація
проектування
авторський нагляд
SH83
GA250
ES540
83 м²
2019
250 м²
2020
540 м²
2019
Проект, в якому зустрілися сучасність та античність
Інтер'єр з розкішним світлом в обідній зоні
Інтер'єр чоловічого пентхауса, побудований на контрасті строгих геометричних форм та елегантного шику